Проект дома A-110. Дом 1 спальня

2 000
Есть в наличии
Количество:
Цены

Стоимость строительства указана из расчета 50 тыс. руб/м2 (газосиликатные блоки+лицевой кирпич).

  • Фундамент: глубина 1,2 м, ленточный или блоки ФБС
  • Цоколь: высота 0,6 м, фундаментный кирпич, блоки, монолит
  • Наружные стены: толщина 500 мм, пенобетон/газобетон+лицевой кирпич
  • Внутренние стены: пенобетон/газобетон, кирпич
  • Высота 1-го этажа: 2,7 м
  • Перекрытия 1-го этажа: по деревянным балкам
  • Кровля: битумная черепица, металлочерепица
  • Наружная отделка стен: лицевой кирпич
  • Наружная отделка цоколя: природный камень
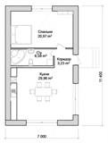
  • Ширина дома: 7,0 м
  • Длина дома: 11,4 м
  • Высота дома от уровня пола 1-го этажа: 5,0 м
У нас Вы можете заказать строительство или купить отдельно этот проект. Вся информация о стоимости строительства и комплектациях есть в разделе "Строительство", информацию о составе проекта можно получить в разделе "Проектирование". Дополнительную консультацию можно получить по телефону или в мессенджерах.
  • Площадь
    60,75
  • Этажность
    одноэтажные
  • Количество спален
    с одной спальней
  • Материалы строительства
    из кирпича
Эти проекты могут вам понравиться
Адрес и режим работы
Наш офис расположен в г. Серпухов, строительство осуществляем на всей территории Московской области, по готовым проектам и индивидуальному проектированию сотрудничаем со всеми регионами РФ и странами СНГ.
 
 
 
Адрес:
г. Серпухов, ул. Карла Маркса, д. 131
 
График работы:
Ежедневно
09:00 - 18:00
 
Контактная информация